Экономичная приточно-вытяжная вентиляция Экотерм(УВРК-50)

Основные преимущеста
Свежий воздух 24 часа в сутки
Подогрев и охлаждение воздуха
Высокий КПД рекуператора до 96%
Работа в паре с кондиционером
Нормализация климата в помещении
5 копеек/час - расход электроэнергии
Невысокая цена - 19 900 руб.

Проблемы с которыми стакливается современный человек
С закрытым окном
-
Головная боль
-
Недомогание
-
Затхлый запах
-
Запотевание окон
-
Грибок на стенах
С открытым окном
-
Уличный шум
-
Пыль
-
Сквозняки
-
Насекомые
-
Нагрузка на кондиционер
Где можно установить вентиляцию?

Идеалено подходит для использования в домах, квартирах и других помещениях. Он не требует прокладки воздуховодов, не занимает место ни внутри помещения, ни на фасаде. Так же допустит образования сырости, грибка и т.п. и не потребует дополнительных затрат на отопление, как иные устройства для вентиляции.
Как устроена вентиляция с рекуперацией?

Технические характеристики
Производительность, м3/ч | 13...80 |
Обслуживаемая площадь, м2 | до 30 |
Энергопотребление не более, Вт | 19 |
КПД энергосбережения, % | 86...96 |
Диапазон температур, град.С | -40...+50 |
Уровень шума, дБА | до 42 |
Подавление наружного шума, дБА | 40 |
Диаметр отверстия в стене, мм | 225 |
Толщина стены, мм | 400-700 |
Принцип работы
Рекуператоры УВРК работают по фазам. На рисунке мы видим, как на первой и второй фазах происходит вытяжка и прогрев рекуператора от контакта с теплым воздухом. На фазах 3 и 4 происходит приток с прогревом свежего приточного воздуха без энергозатрат.

Максимальная производительность одного рекуператора УВРК составляет 80 м3/ч. Если по кратности воздухообмена или объему помещения 80 м3/ч недостаточно, в этом случае рекомендуется устанавливать 2 и более приборов УВРК. Все семейство вентустановок УВРК настраивается на синхронную работу друг с другом, что удваивает производительность. На рисунке видно, как работают две пары вентустановок УВРК. Синхронизированные приборы работают в противофазе: в то время как первый прибор существляет вытяжку, второй осуществляет приток. Следующий цикл: первый прибор осуществляет приток, а второй уже вытяжку и так постоянно, цикл за циклом. Такой подход позволяет захватывать промежуточные помещения. Выполняются подрезы в дверях. Либо монтируются переточные решетки в стене или в двери.

Монтаж УВРК






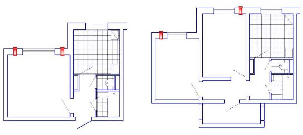
Размещение приборов в помещении
Приборы монтируются в наружной стене здания. Каждый из приборов обеспечивает свежим воздухом помещение площадью до 30 м2 при высоте потолков 2,5-2,6 м (около 80 м3). Если по объему помещения одного прибора недостаточно, устанавливать 2 и более УВРК. При этом желательно настроить приборы для работы в противофазе (согласно руководству пользователя), чтобы воздух стремился пройти весь путь от одного прибора к другому. Это обеспечит более эффективный воздухообмен, надо лишь предусмотреть щель под дверью, соединяющей комнаты, или переточную решетку в двери. В больших помещениях с большим числом людей могут быть размещены несколько пар приборов.


Прибор УВРК-50 подает в помещение подогретый воздух, однако его температура все же несколько ниже комнатной. Поэтому монтаж установки рекомендуется выполнять так, чтобы поток воздуха не был направлен непосредственно на людей - на высоте 1,8–2,3 м от пола или вблизи отопительных приборов. Не рекомендуется монтаж непосредственно над местами для сна и отдыха.
Прибор УВРК-50 работает непрерывно без Вашего вмешательства.
При выборе места монтажа следует учесть, что при эксплуатации Вам придется периодически чистить прибор от пыли, очищать фильтр. Фильтр извлекается путем легкого отщелкивания декоративной решетки.
Вытяжные вентиляционные устройства, имеющиеся в туалете, ванной и кухне, при своей работе будут потреблять часть приточного воздуха, подаваемого прибором. Это, несомненно, улучшит их работу. Однако выбрасываемый вытяжной вентиляцией из помещения теплый воздух несколько снижает эффективность прибора УВРК-50 (снижает температуру подаваемого прибором приточного воздуха). Поэтому при использовании приборов УВРК-50 рекомендуется оснастить вытяжные устройства в подсобных помещениях вентиляторами с выключателями и отсечными клапанами, позволяющими отключать вытяжку, когда подсобные помещения не используются.
Прибор УВРК-50 работает непрерывно без Вашего вмешательства.
При выборе места монтажа следует учесть, что при эксплуатации Вам придется периодически чистить прибор от пыли, очищать фильтр. Фильтр извлекается путем легкого отщелкивания декоративной решетки.
Вытяжные вентиляционные устройства, имеющиеся в туалете, ванной и кухне, при своей работе будут потреблять часть приточного воздуха, подаваемого прибором. Это, несомненно, улучшит их работу. Однако выбрасываемый вытяжной вентиляцией из помещения теплый воздух несколько снижает эффективность прибора УВРК-50 (снижает температуру подаваемого прибором приточного воздуха). Поэтому при использовании приборов УВРК-50 рекомендуется оснастить вытяжные устройства в подсобных помещениях вентиляторами с выключателями и отсечными клапанами, позволяющими отключать вытяжку, когда подсобные помещения не используются.
Канальная модификация УВРК-50

Канальная приточно-вытяжная вентиляция УВРК-50К (LQ50/200К) - это модификация приточно-вытяжной вентустановки УВРК-50 (LQ50/200).
В новой приточно-вытяжной вентиляционной установке сохранились все основные технические решения предыдущей модели, а т.ж. её элементная база. УВРК-50К работает по тому же принципу, с аналогичными параметрами. В результате новой модификации получилась канальная приточно-вытяжная вентиляция с рекуперацией для энергосбережения тепла при комфортной вентиляции офисов, квартир, кабинетов и др. помещений.
Вентиляция УВРК-50К предназначена для установки на балконах, лоджиях, в том числе и застекленных. Соединение с помещением выполняется с помощью продающихся в розничной сети элементов систем, круглых или плоских вентиляционных каналов, или с помощью гибких воздуховодов. Приточно-вытяжные вентустановки УВРК-50 и УВРК-50К могут работать совместно в одном помещении. Канальная вентустановка УВРК-50К дает пользователю все преимущества УВРК-50, она энергоэффективна, экономична и морозоустойчива.
Какими преимуществами обладает УВРК-50?
- Модифицированный вентприбор можно устанавливать в зданиях, имеющих закрытые застекленными лоджиями фасады. Установка УВРК-50 в таких случаях невозможна.
- УВРК-50К может быть установлена как на открытом балконе, так и на стене, в пределах доступа с балкона.
- Возможна установка под окно.
- Отверстие в стене помещения для вентканала стало существенно меньше, чем 220 мм, требующиеся для УВРК-50.
- В вентиляционной сети прибора УВРК-50К допускается эффективный шумоглушитель.